2002-2003
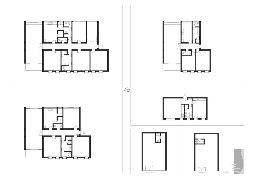
collective housing
(unfinished academic project)
Arrival. Departure. Intermodal station.
The identification with the places of passage.
The velocity of relations.
The sympathy with strangers.
The occasion friends.
Routines to win the urban monotony.
The places where the Past has no space.
The spaces where the History is protagonist.
Because the Present is always a transition between
Past and Future.
Because contemporary society behaves as a child: only
the new toy is important, and this is easily replaced.
History has to have its own place, just like it has to
exist a space where it can be forgotten.
Because the world percentage of urban population
increases in detriment of the rural one.
Because the terrestrial surface is also an exhaustible
resource.
Velocity is a consumer good not yet democratized in
the Portuguese Northwest territory.
The alternative does not exist.
Guimarães is still an industrial city: it lacks
services.
There is a space, previously rural, that with the
introduction of an urban highway became a peri-urban wasteland.
Because the city has to be decentralized.
Because the topography is moldable at any scale.
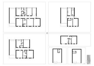
The "loft" and the patio house are the
models most ambitious for any real estate.
A house that is not sold is a city space waiting to be
inhabited.
The owners of a good that cannot sell are always
forced to lower the price for it to unravel.
A house that cannot be sold is a nuisance to society.
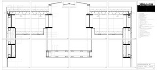
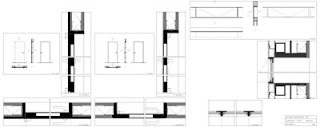
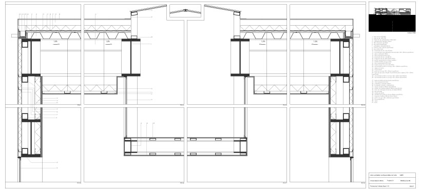
Through the analysis of the positioning of the lot in
relation to the territory, it became imperative that there would emerge a new
scale of relationship with topography, a filter, a dematerialization of
architecture.
It is the city entrance door. One side rural and
disperse, the other compact and polite, favorable to the encounter.





















































